05_Library

MOSCOW / 2021
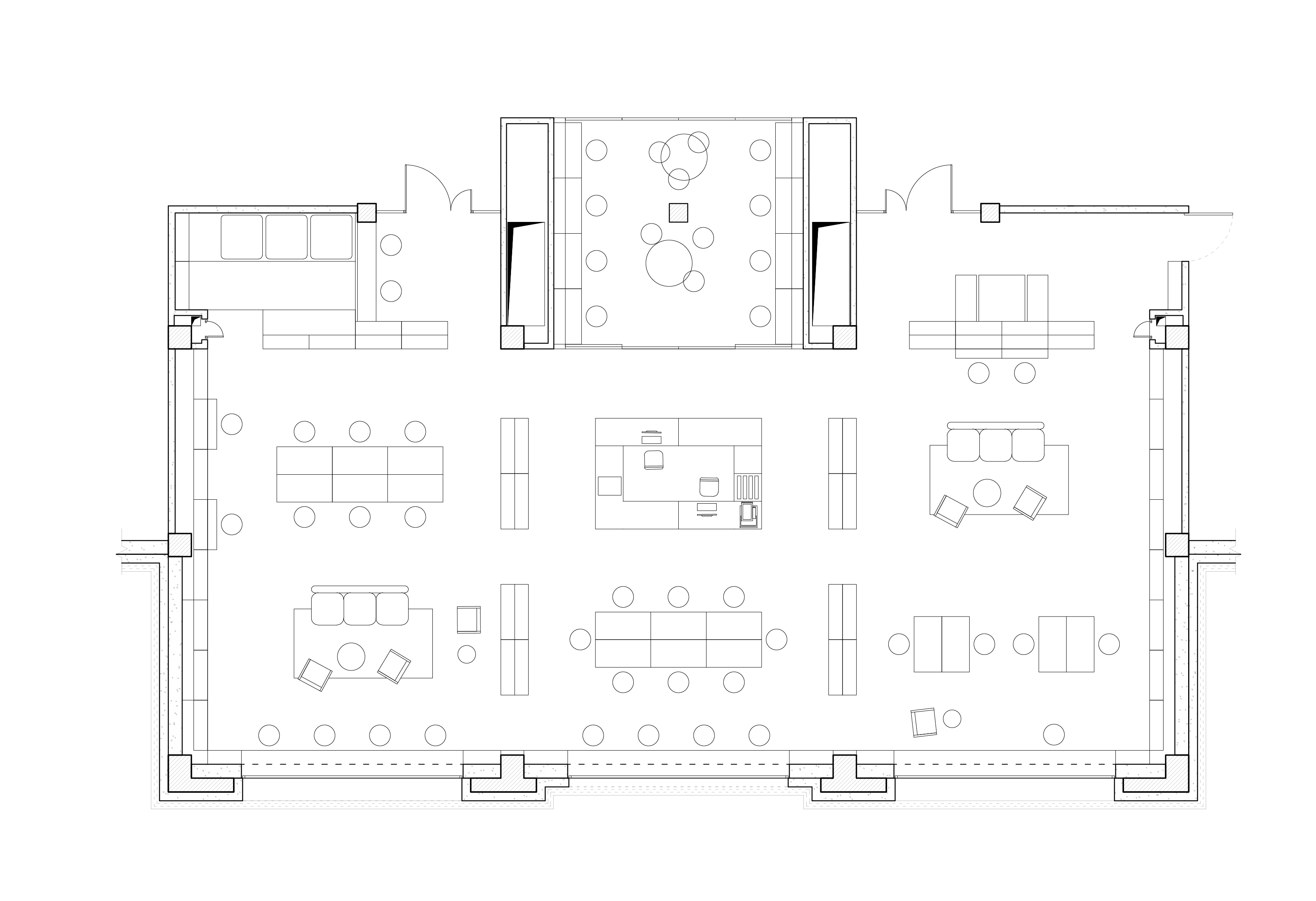
The objective of the project is to create a comfortable and fun school library. Together with the client we conducted a survey of students of all ages in order to find out from them what they would like to see in the new library space. In accordance with their answers, I tried to include in the interior single places for study, a soft furniture and carpets, a separate half-room so that the student could be alone for a while and maybe even sleep.






